Клапан дымоудаления КДМ 2

Клапан дымоудаления КДМ 2

Давайте коротко разберемся что такое клапан дымоудаления КДМ 2, для чего он необходим, его свойства, а также его плюсы и минусы.

Клапаны дымоудаления (КДМ2)– это регулирующий клапан из стали, разработанный для бесперебойного функционирования проточных противодымных вентиляционных систем, как в жилых, так и в промышленных помещениях.

Такого вида клапан является одним из основных составляющих противодымных систем.

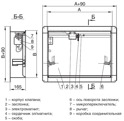
Основной принцип работы клапана заключается в следующем: при подаче напряжения, скоба освобождается от замка, под действием рычажной пружинной системы, створка поворачивается — тем самым открывая клапан.

При производстве данного вида клапана учитывают его дальнейшее расположение в системе.

Виды клапанов дымоудаления

Так как проточно противодымная система бывает различных вариантов, в основном, клапаны делают двух видов:

  • Стеновой. Один фланец, привод расположен внутри клапана.
  • Канальный. Два фланца, привод можеть быть расположен как внутри так и снаружи клапана.

Клапаны могут быть  по заказу укомплектованы — электромеханическим , реверсивным, иле же электромагнитным приводом.

Клапан дымоудаления КДМ 2, на практике, устанавливается в вертикальном или горизонтальном положении, в зависимости от расположения самой системы противодымной вентиляции.

Стоит заметить, что во взрывопожароопасных помещениях категории А или Б, данный вид клапана не устанавливается.

Стеновой клапан КДМ 2

Канальный клапан КДМ 2

КДМ 2

Данный вид клапана имеет определенный порог огнестойкости (1 час (ЕI60)) который и определен в его технически-эксплуатационных нормативных актах.

При установке данного вида клапана, необходимо учитывать: концентрацию паров и газов в помещении, электроизоляцию, максимально допустимы придел температур в помещении (согласно эксплуатационно-техническим данным -30 °С до +40), воздействие природных осадков.

Преимущества и недостатки

Плюсы данного вида клапана дымоудаления КДМ 2 в его небольших габаритных размерах, огнестойкости по отношению к более простым клапанам подобного типа, не большой ценой, легкостью при монтаже в систему вентиляции.

Но нужно не забывать что такой вид клапана имеет и свои определенные минусы: основной это достаточно небольшой срок эксплуатации (ввиду определенных свойств металла) в условиях минусовой температуры, последующем техническом обслуживании (подлежит полной замене в ряде случаев).