Ленточный фундамент своими руками

Ленточный фундамент своими руками

Надежность, универсальность, а также относительная простота в изготовлении – все это характеристики ленточного фундамента, который по объяснимым причинам достаточно распространен в качестве опорной конструкции для самых разных объектов, начиная от домов и заканчивая заборами и банями.

Что примечательно, так это то, что вполне возможно соорудить ленточный фундамент своими руками.

Что представляет собой такой вид фундамента?

Как правило, это железобетонное основание, которое изготовлено по периметру возводимого объекта, и служащее для распределения основной нагрузки на грунтовый слой.

Возведение ленточного фундамента довольно простой процесс, однако он занимает немало времени, а также является достаточно трудоемким.

Самое важное при закладке фундамента – соблюдение рекомендаций, при их невыполнении могут наблюдаться отрицательные результаты.

Расчет ленточного фундамента

Давайте рассмотрим, как выполняется расчет ленточного фундамента. Для начала необходимо узнать его основные параметры, а именно площадь основания и глубину заложения.

Начинают, как правило, с самого простого, поэтому первым делом расчет ленточного фундамента подразумевает собой расчет глубины залегания.

Глубина фундамента определяется, исходя из показателей грунта, а также характеристик возводимого объекта.

К примеру, для массивного двухэтажного кирпичного дома ленточный фундамент будет заглубляться до границы промерзания грунтового слоя (для необходимой надежности на 300 миллиметров глубже).

При этом часть фундамента будет изготовлена над нулевым уровнем на триста миллиметров.

Схемы:

armirovanie-uglov-lentochnogo-fundamenta

shema-lentochnogo-fundamenta

shema-ykladki-fundamenta

Таким образом, общая глубина для массивных сооружений составит 600 миллиметров + глубина промерзания грунта, которая для разных регионов рассчитывается по-своему.

Для легких сооружений, таких как, бани, деревянные дома, заборы фундамент может заглубляться на 500 мм.

В таком случае имеется предположение, что вспучивание грунта будет происходить равномерно, что не скажется на целостности строения.

Остальные размеры ленточного фундамента рассчитываются следующим образом: ширина каждой полосы принимается за 400 мм.

Перед тем, как сооружать мелкозаглубленный фундамент своими руками (или основание другого типа, к примеру, свайно-ленточный фундамент) необходимо, также, рассчитать площадь его подошвы.

Данная величина определяется по такой формуле — S > k(n)*F/k(c)*R, где:

  • k(n) – коэффициент надежности. Величина принимает значение 1,2, это говорит о том, что запас площади равен 20 процентам;
  • F – суммарная нагрузка на грунт. Величина подразумевает нагрузку от дома, фундамента, полезную нагрузку;
  • k(c) – коэффициент, показывающий условия работы, принимает значение от одного для пластичной глины, а также сооружений жесткой конструкции, до 1,4 для не жестких конструкций;
  • R – сопротивление грунта (расчетное).

Мелкозаглубленный ленточный фундамент своими руками может рассчитываться и по такой формуле - Р дома/SН.Ч>qгр, где:

  • Р дома — вес дома со всем его содержимым;
  • SН.Ч — опорная площадь фундамента в квадратных сантиметрах;
  • Qгр — несущая способность грунта, вычисляемая в килограммах на сантиметр квадратный.

Подготовительные работы

Перед тем, как возводить ленточный фундамент своими руками необходимо произвести анализ грунта на том участке, где планируется строительство.

Данный анализ может проводиться на основе геологических исследованиях грунта, которые могут провести специальные компании, но чаще всего их приходится проводить самостоятельно.

Как правило, перед началом строительства разрабатывают скважину, так как постоянный источник воды способен обеспечить нормальное проведение строительных работ.

Именно при бурении скважины и отбирается проба на грунт на различной глубине. Для точности оценки грунтового слоя глубина скважины (шурфа) должна быть больше глубины промерзания грунта на 50 – 70 сантиметров.

Далее необходимо измерить глубину почвенного и насыпного слоев. Если даже возводить мелкозаглубленный ленточный фундамент, такие слои не подойдут, в силу своей небольшой несущей способности.

Поэтому при возведении конструкции эти слои убирают, оставляя пласты грунта, а именно пески, супеси, глины и суглинки, скрытые под верхним слоем почвы.

Чертежи:

chertezh-lentochnogo-fundamenta

shema-chertezha-lentochnogo-fundamenta

shema-ykladki-lentochnogo-fundamenta

Далее производят разметку и расчет арматуры для ленточного фундамента. Перед разметкой участок очищается от мусора и высокой травы.

На данном этапе уже должен быть чертеж устройства ленточного фундамента.

Когда на руках имеется простейшая схема, можно приступать, непосредственно, к разметке. Для разметки можно использовать колышки и леску, также, понадобится рулетка.

На этапе подготовительных работ выбирается и марка бетона для ленточного фундамента. В основном выбор данного критерия зависит от того, под какое здание возводится основание.

Проще говоря, для строительства фундамента под дом будет использоваться бетон марки М 400, ленточный фундамент под забор будет возводиться бетоном марки М 200.

На этапе подготовительных работ, также, имеет смысл задуматься и о тех, работах, которые необходимо будет произвести после того, как фундамент будет готов, к примеру, о гидроизоляции ленточного фундамента.

Инструкция по армированию

Армирование ленточного фундамента происходит перед сооружением самой конструкции. Материалом для армирования служат металлические прутья с диаметром сечения от 8 до 14 мм.

Ленточный фундамент под забор или другие легкие сооружения будет иметь арматуру меньшего сечения.

Чтобы нагрузка распределялась равномерно на ленточный монолитный фундамент, внутри каждой полосы изготавливают каркас из металлической арматуры.

Металл, который используется для этих целей, отличается высокой гибкостью, что является залогом надежного и долговечного фундамента.

Схема армирования ленточного фундамента имеет ряд основных правил:

  • Продольная арматура должна быть одинаковой длины, по возможности максимальной;
  • Поперечные отрезки с меньшим диаметром должны быть короче на 10 сантиметров ширины фундамента. Их количество определяется, исходя из расстояния, на котором они находятся друг от друга, как правило, 1 метр, как на нижней, так и на верхней решетках;
  • Вертикальные стержни необходимо нарезать в том же количестве, что и поперечные, при этом использовать ту же арматуру. Их длина должна быть меньше высоты ленточного фундамента на десять сантиметров.

Далее, чтобы вопрос, как армировать ленточный фундамент, остался решенным, следует приступить к изготовлению самого каркаса.

Рядом с траншеей на земле нужно расположить два продольных стержня так, чтобы между ними было расстояние, меньшее длины поперечных отрезков.

Наверх привариваются поперечины на расстоянии одного метра друг от друга. Нижняя решетка готова.

Таким же методом следует сварить и верхнюю решетку.

Далее в местах пересечения поперечных и продольных заготовок к нижней решетке привариваются стержни в вертикальном положении, к верхним концам которых приваривается верхняя решетка.

Технология устройства

Технология устройства ленточного фундамента подразумевает собой несколько этапов.

После того, как основание сделано, сооружают специальную песчаную подушку под ленточный фундамент. Это делается для того, чтобы правильно распределить на конструкцию нагрузку.

Толщина такой подушки из песка должна быть 100 – 150 мм, ее выравнивают по уровню, затем тщательно утрамбовывают.

Следующий этап – опалубка для ленточного фундамента. Если возводится мелкозаглубленный или незаглубленный ленточный фундамент, опалубка делается из подручных материалов.

Для таких целей можно использовать фанеру, куски металлочерепицы, ненужные доски, бруски и другие материалы.

Если глубина заложения ленточного фундамента была довольно значительной, опалубка крепится на всю глубину траншеи и плюсом выводится на 300 миллиметров выше верхнего грунтового слоя. Далее происходит армирование, инструкция по которому была описана выше.

Следующий этап самый главный, на нем происходит заливка бетона.

Наиболее популярная марка бетона для ленточного фундамента – М 400, также, используют М – 200 и М – 300, идеальным вариантом будет, если бетон имеет заводское изготовление.

Если вы изготавливаете бетонный раствор самостоятельно, помните, что заливка ленточного фундамента бетон должна происходить за один раз, иначе возникает вероятность образования мостков холода.

Поэтому следует заранее подготовить необходимое оборудование.

Виды ленточных фундаментов

Сам бетонный раствор должен содержать следующие пропорции: цемент/песок/щебень в соотношении 1/3/5, пропорция воды должно быть 0,5.

После заливки бетона, его нужно проткнуть в нескольких местах щупом для того, чтобы ликвидировать лишний воздух.

Опалубку можно будет снимать примерно через 5 дней, за это время ленточный фундамент наберет необходимую прочность.

Теперь несколько слов о СНиП на ленточные фундаменты: общие условия СНиП гласят, что фундаменты строго должны соответствовать расчетной формуле, иметь рекомендуемую глубину заложения, которая зависит от глубины промерзания.

СНиП определяет высоту фундамента и высоту фундамента над землей.

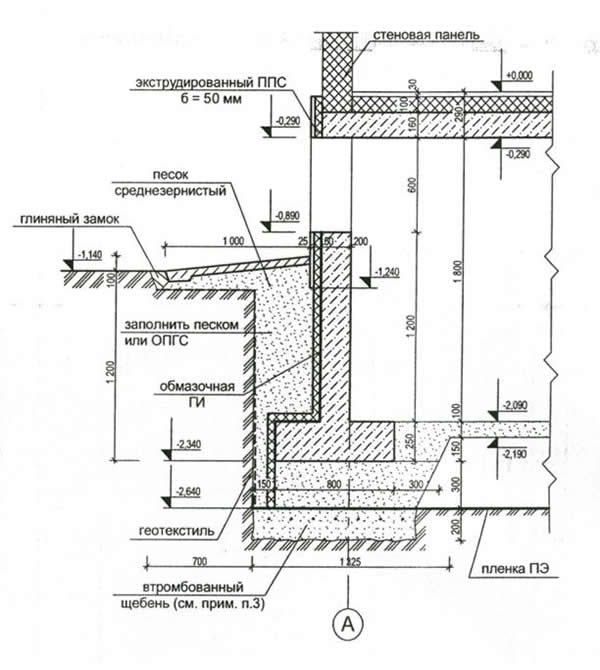
Гидроизоляция и утепление

Гидроизоляция ленточного фундамента – важнейший этап, благодаря которому сооружение будет надежно сохранено от проникновения влаги, грунтовых вод, дождевой воды и таяния снега.

Этот этап в закладке фундамента – ответственная работа, которая требует определенных знаний и навыков. При соблюдении всех технологий гидроизоляцию можно произвести и самостоятельно.

Фундамент должен быть защищен от подземных грунтовых вод и от поверхностных, то есть осадков.

Чтобы не проникали осадки, устанавливается отмостка. Для гидроизоляции от грунтовых вод, бетон покрывают специальными растворами.

Происходит это следующим образом: спустя 4 – 7 суток, после того, как был залит бетон, опалубку снимают, а боковую поверхность покрывают специальным составом.

Можно использовать традиционные растворы типа рубероида и битумной мастики.

Не зависимо от того, возводите ли вы обычный или свайно-ленточный фундамент, по завершению работ следует выполнить обратную засыпку.

Для этих целей используется песок, который предварительно смачивается, а затем утрамбовывается для того, чтобы гидроизоляционный слой не повредить.

После этого остается ждать окончательного затвердения бетона, на которое обычно уходит примерно четыре недели.

Утепление ленточного фундамента производится с теми же целями, что и утепление самого дома.

Промерзание грунтов представляет особую опасность для фундаментных конструкций.

Утепление же дает такие результаты, как снижение потерь тепла, уменьшение отопительных расходов, устранение воздействия на фундамент грунтового промерзания, стабилизирование температуры помещения.

Для утепления фундамента прекрасно подойдут такие материалы, как экструзионный пенополистирол и напыление пенополиуретана.

Утепляя фундамент экструзионным пенополистиролом, вы получаете следующие преимущества: длительный срок службы, высокая прочность на сжатие, «несъедобность» для грызунов, постоянство теплоизоляционных свойств.

Пенополиуретан может похвастаться такими показателями, как бесшовность покрытия, низкая теплопроницаемость, высокие адгезионные свойства, низкая паропроницаемость, долголетие, надежность, отсутствие необходимости в дополнительной установке гидроизоляции и пароизоляции.

К недостаткам материала можно отнести боязнь ультрафиолетовых лучей и необходимость наличия специального оборудования.