Облицовка колонн металлом: особенности проектирования и монтажа

Колонна с металлической облицовкой

Колонна с металлической облицовкой

Облицовка колонн металлом обретает в последнее время большую популярность. Это не удивительно, поскольку таким образом можно придать индивидуальность любому архитектурному проекту.

Из чего изготавливаются колонны

Колонны представляют собой декоративные конструкции. Есть большое количество материалов для их сооружения. Из чего строятся колонны:

  • Наиболее часто для сооружения такой конструкции используют кирпич, дерево, пеноблоки и другие материалы.
  • Облицовкой колонны может быть любой современный отделочный материал.
  • Форма у них также разнообразная.

Формы колонн, которые могут изготавливаться из перечисленных материалов:

  • Квадратные.
  • Круглые.
  • Асимметричные.
  • Прямоугольные.

Примечание. Очень оригинально смотрится отделка колонн металлом.

Что нужно изначально для отделки колонн металлом

В подготовительные работы входит:

  • Выбор подходящего металла (нержавеющая сталь, алюминий, титановый сплав, композитные материалы).
  • Разработать проект каркаса для монтажа материала.
  • Рассчитать необходимое количество металла и определить стоимость работ.
  • Подобрать нужный инструмент для монтажа металлического короба.

Совет. Нержавеющая сталь лучше подходит для фасадной облицовки металлом колонны, поскольку имеет более высокую антикоррозийную устойчивость и обладает повышенной прочностью. Для внутренней отделки можно использовать алюминий.

  • Выбор текстуры металла (шлифованная, зеркальная, матовая, перфорированная, с текстурой).
  • Выбор оттенка облицовки.
  • Продумать количество и месторасположение осветительных приборов.
  • Подобрать крепления или вид сварочного оборудования. Для этого потребуется изначально получить консультацию специалистов.

Ключевые аспекты при проектировании короба для колонн

Облицованные металлом колонны

Облицованные металлом колонны

Нержавеющая сталь для облицовки колонн также хороша. При желании заказчика, можно отдать предпочтение другому виду металла, обладающему такими же качествами. Итак:

  • Каждый проект колонны рассчитывается в зависимости от параметров конструкции.
  • Облицовка колонны металлом осуществляется листами толщиной от 0,8 до 1,5 мм.

Примечание. Металл, который имеет большую толщину используется только для наружной облицовки.

  • На начальном этапе облицовки поверхность колонны выравнивается и на ней изготавливается обрешетка из черного металла. Далее на нем собирают основной каркас для монтажа отделки.

Совет. На данный момент есть готовые декоративные металлические панели, которые используются для отделки поверхностей и оформления колонн.

Типы колонн и их сечения

Колонны бывают нескольких типов. Рассмотрим подробнее:

  • Круглые колонны. Такие конструкции используются чаще всего для внутреннего и наружного оформления балконов и других подобных конструкций.
  • Квадратные.
  • Прямоугольные.

Совет. Металлическая облицовка колонн зависит от формы и размера самой колонны.

  • Многогранные колонны. Имеют нестандартные формы, которые разрабатываются под определенный дизайн интерьера.
  • Винтажные или римские колонны. Чаще всего они круглой формы. Работа по облицовке такого типа колонн гораздо сложнее.

По типу сложности колонны могут быть:

  • Простые. Стандартная квадратная железобетонная колонна, на которую монтируется два «глухих» П-образных короба из нержавеющей стали.
  • Сложные. Круглая железобетонная конструкция в «глухом» металлическом коробе
  • Индивидуальные. Помимо стандартных листов из стали, часто используются алюминиевые, медные и цинковые материалы.
  • Дизайнерские. Специалисты на основе пожеланий заказчика монтируют на основу перфорированные металлические листы с любой фактурой и расцветкой. Также возможен вариант сочетания металла со стеклом. В внутрь конструкции прокладывается освещение.

На фото пример дизайнерского проекта колонны с применением металла и подсветки.

Дизайнерская колонна

Дизайнерская колонна

Совет. Для уличных колонн лучше то покрытие, которое уверенно противостоит внешним воздействиям (погодные и климатические условия). Облицовка колонн металлических на улице выполняется готовыми декоративными элементами и панелями из аналогичного материала.

Преимущество колонн, которые облицованы металлом

У этого способа оформления колонн есть некоторые преимущества. Итак:

  • Эстетика. Облицовка колонн нержавеющей сталью придаст старым безликим конструкциям новое оформление.
  • Стойкость и долговечность. Нержавеющая сталь – прочный металл, не подверженный коррозии и температурным воздействиям.
  • Износостойкость и прочность. Нержавеющий каркас имеет высокие эксплуатационные показатели, что продлевает срок эксплуатации сооружения.

Совет. Облицовка колонна металлом – недешевый вариант. Цена варьируется от степени сложности заказа и колеблется в пределах $50-150 за м2.

  • Функциональность. В пространство между отделкой и коробом прокладывают провода, телефонные кабели и так далее.
  • Относительная легкость монтажа и демонтажа в случае необходимости. При повреждении какой-либо части короба она легко заменяется новой. При этом основная облицовка остается нетронутой.

Последовательность работ по облицовке колонн

Современные технологии дают возможность сделать металлическую облицовку любой колонны. Высота конструкции в некоторых случаях достигает 30 м. Процесс облицовки колонн:

  • Изначально делается провешивание. Крепление несущего каркаса из черного металла, на который будет крепиться вся дальнейшая конструкция.
  • Затем проводится монтаж самого каркаса.
  • Монтаж облицовочных плит — заключительный этап отделочных работ.

Для работ есть инструкция, согласно которой выполняются подготовительные и отделочные работы.

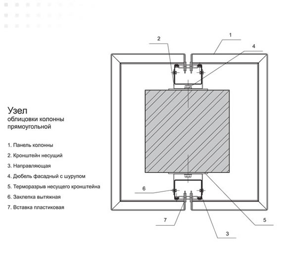
Схема сечения колонны

Схема сечения колонны

Рассмотрим подробнее:

  • Провешивание необходимо для определения уровня отклонения от вертикальной плоскости.
  • Если угол отклонения незначительный, то неровности исправляются установкой направляющих и металлического короба.
  • При значительном отклонении есть другие варианты исправления дефектов.
  • Отбивочным шнуром намечаются линии, по которым прокладываются направляющие. На готовый каркас крепиться нержавеющий или алюминиевый короб.

Необходимые материалы для сооружения каркаса для облицовки:

  • Направляющие.
  • Несущий кронштейн.
  • Фасадные дюбеля.
  • Терморазрывы.
  • Сопутствующие материалы.
  • Направляющая служит для задания направления шва каркаса.
  • Несущий кронштейн держит направляющую.
  • Фасадными дюбелями вся эта конструкция закрепляется на колонне, а терморазрывы необходимы в случае, если колонна подвержена колебаниям температур.
  • Терморазрыв представляет собой резиновую или пластиковую прокладку, которая находится между колонной и шляпкой дюбеля.

Совет. При самостоятельной покупке дюбелей необходимо убедиться, что они фасадные и с шурупом.

Сопутствующие материалы:

  • Заклепки.
  • Заклепочник.
  • Различные вставки и шурупы.

Как сделать облицовку колонн самостоятельно

Облицовка стальной колонны – сложный процесс, но при квалифицированной консультации есть возможность выполнить ее быстро и просто. Проведение работ:

  • Изначально нужно произвести точный расчет каркаса и его составляющих.
  • Выбрать крепежную фурнитуру.
  • Заказать правильную гибку нержавеющих листов или купить декоративные металлические панели.
  • Выставить по уровню направляющие и смонтировать предварительный каркас
  • С помощью заклепок или «глухих» шурупов установить панели на колонне.

Из инструментов понадобится:

  • Перфоратор.
  • Шуруповерт.
  • Строительный уровень.
  • Рулетка.
  • Отвес.
  • Другой подручный инструмент.

Отделка колонн может выполняться своими руками и профессионалами. Подробнее:

  • Стоимость облицовки колонн нержавеющей сталью колеблется в пределах от $50-60 за м2.
  • Довольно дорогостоящее удовольствие.
  • Облицовка металлической колонны выполняется только профессионалами, так как основной материал для монтажа отделки может быть мягким и само крепление облицовки придется делать не на каркасе, а при помощи саморезов.

Лучше сэкономить средства и выполнить облицовку колонн самостоятельно.