Трубогиб для профильной трубы своими руками

Трубогиб для профильной трубы своими руками

Для людей мастеровитых гибка профильной трубы своими руками – обычная и довольно частая процедура. Потому в сети можно найти огромное количество моделей так называемых трубогибов.

Многие из данных конструкций просты в исполнении, малозатратны в отношении материалов и довольно удобны в работе.

Итак, расскажем, как сделать трубогиб для профильной трубы своими руками. Но сначала определимся с термином. Под трубогибом понимают приспособления или станки, с помощью которых можно согнуть трубу из меди, стали, алюминия, поливинилхлорида, любого иного пластичного материала под любым углом в диапазоне вплоть до 180°.

Диаметр труб при этом может быть в самом широком диапазоне, начиная от 5 мм и заканчивая 1220 мм. В нашей публикации мы предлагаем не один, а сразу несколько простых решений, которые позволяют изготовить трубогиб для профильной трубы своими руками буквально за пару свободных вечеров.

Однако сначала в целях информационных разберемся с видами трубогибов.

Виды трубогибов

Если говорить о трубогибах промышленных, то они разделены на виды по типу привода, а также по способу изгиба.

По типу привода приспособления разделяют на ручные и гидравлические, а также электромеханические.

Ручной трубогиб

Электромеханический трубогиб

Гидравлический трубогиб

Первые используют для изгибания труб небольшого диаметра из полимеров и цветных металлов, нержавейки.

Вторые могут быть, как ручными, так и стационарными и разрешают сгибать даже 3-х дюймовые трубы без особенных усилий со стороны работника. Гидравлические трубогибы – это, в большинстве своем, профессиональные устройства, которые способны к выполнению довольно больших объемов работ.

Чаще всего такие устройства функционируют от электросети и отличаются довольно хорошей скоростью работы, простотой использования и не требуют приложения особых усилий.

Третьи – электромеханические, употребляют применительно к довольно обширному перечню диаметров, ведь они способны обеспечить и высокие показатели точности угла, и радиуса изгиба.

При этом они разрешают гнуть и тонкостенные трубы, в отличие от гидравлических аналогов, причем совершенно без деформации.

По способу изгиба трубогибы разделяют на:

  • арбалетные;
  • пружинные;
  • сегментные;
  • дорновые.

В арбалетных трубогибах в роли изгибающего элемента выступает особая форма, которая предназначена для точно определенного диаметра труб.

В аналогах пружинных используются пружины, обеспечивающие гибку бездеформационную пластиковых труб вручную. В сегментных трубогибах трубы гнутся особым сегментом, которые вытягивают трубу вокруг себя.

Безусловно, трубы разного диаметра, с различной толщиной стенок, произведенные из разных металлов характеризуются своими особенностями. К примеру, общеизвестна такая величина, как радиус минимальный изгиба.

Если быть более точными, то она напрямую зависит от диаметра трубы и ее стенок. Конечно, сгибать можно и с меньшим радиусом, но в этом случае будет страдать качество изгиба. Потому минимального радиуса изгиба все же следует придерживаться.

Делаем ручной трубогиб своими руками

Теперь перейдем к самодельным трубогибам. Наиболее простой вариант, который способен обеспечить заданный радиус изгиба кроется в сгибании трубы посредством шаблона.

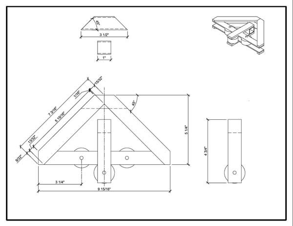
Заметим, что данная технология подходит для гибки не только труб из алюминия, но и некоторых стальных аналогов. В данном случае нужно выпилить шаблон из досок толщиной чуть больше диаметра сгибаемых труб.

Далее, доски следует скрепить любым удобным для вас способом. Дабы в процессе гибки из шаблона труба не выскальзывала, выпиливать доски следует с небольшим наклоном.

Затем, скрепленные доски нужно к столу либо к какому-нибудь основанию прикрепить. Как можно ближе к шаблону следует закрепить и упор, в который далее будет упираться труба.

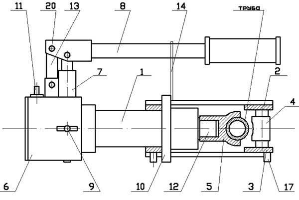
Чертеж профильного трубогиба

Чертежи ручного трубогиба

Пример готового трубогиба

Самый элементарный ручной трубогиб своими руками готов. Отметим, что подобными устройствами можно исгибать трубы и плохо поддающиеся ручной гибке, если использовать, к примеру, ручную лебедку.

Самодельный ручной трубогиб для профильной трубы

Следующий вариант – это самодельный ручной трубогиб для профильной трубы. В данном случае, также может использоваться шаблон, но не делают такой большой скос, а трубу фиксируют уже не одним, а сразу несколькими ограничителями.

Можно сделать и простой прокатный ручной трубогиб для профильной трубы своими руками из дерева. Примечательно, что из древесины можно делать даже и ролики, но хорошими варианты будут и из полиуретана и из подшипников.

Последний, однако, каким-нибудь образом нужно заклинить, дабы он в ходе эксплуатации не прокручивался.

Сложность производства самодельных трубогибов сильно зависит от такого свойства, как гибкость сгибаемых труб. Если для работы с гибкими аналогами подойдет и простой трубогиб практически полностью деревянный, то в случае недостаточной прочности, вполне возможно будет заменить какие-либо детали на более крепкие.

Делаем гидравлический трубогиб своими руками

Если вы задались целью сделать гидравлический трубогиб, у вас обязательно должны быть в наличии домкрат гидравлический, швеллер, минимум два ролика и башмак, а также пластины металлические.

Из швеллера сваривают прямоугольную конструкцию по максимальной высоте домкрата. Последний определяют на основание и жестко закрепляют с помощью металлических пластин.

Домкрат (не менее чем в 5 тонн, а можно и больше) в данном случае будет выполнять функцию толкателя. Самым сложным при этом является поиск подходящих роликов, ведь для качественного изгиба они должны максимально точно обхватывать трубу.

Примечательно, что рационально будет запастись сразу несколькими роликами, которые могут быть в принципе съемными и позволят сгибать трубы из разных материалов и разного диаметра.

Схема гидравлического трубогиба

Чертеж гидравлического трубогиба

Гидравлический трубогиб изготовленный на производтве

Преимущество данного гидравлического трубогиба состоит в том, что он при простоте в изготовлении, доступности и дешевизне самого домкрата и запчастей позволяет легко осуществлять в холодном состоянии сгибание стальных труб при проведении сантехнических, авторемонтных, а также многих иных работ.