Варианты перепланировки трехкомнатной хрущевки

varianti-pereplanirovki-trehkomnatnoi-hrushevki-v-panelnom-i-kirpichnom-dome

Под хрущевками или же хрущобами (от трущоб, ведь жить в таких «апартаментах» не слишком удобно и многих владельцев интересует перепланировка трехкомнатной хрущевки) принято понимать кирпичные или же панельные дома от двух до пяти этажей в высоту.

Такие здания массово сооружались во времена Союза, в тот период, когда «у руля» был Хрущов – отсюда и их название.

В хрущевках большинство квартир, на самом деле, одно- или же двухкомнатные, однако, трехкомнатные «апартаменты», на которых мы бы хотели сделать особый акцент в этой публикации, также имеются.

Перед тем, как рассматривать варианты перепланировки трехкомнатной хрущевки, мы бы хотели сказать пару слов об особенностях хрущоб.

Высота потолков в таких квартирах обычно равна 2,48 метрам (второй и следующие этажи в кирпичный домах могут иметь высоту в 2,28 метра) или же 2,7 метрам (некоторые серии).

Санузел чаще совмещенный, хотя встречаются и раздельные варианты. Лифтов, а также звукоизоляции — такие постройки лишены.

Хрущовки сносимых серий изначально предназначались для временного решения жилищной проблемы. Планировалось, что люди будут жить здесь не более 25 лет. Однако, часть таких зданий активно эксплуатируется и сегодня.

Хрущобы несносимых серий имеют несколько больший срок эксплуатации – 50 лет. Хотя, проведенные исследования показали, что эти дома могут прослужить и 150 лет, в том случае, если будет вовремя проведен капитальный ремонт.

Кстати, в Первой и Второй российских столицах действуют специальные программы по сносу и реконструкции хрущовок, но, если ваш дом не подпадает под эту категорию или же вы живете в иных регионах страны, то вопрос о перепланировке квартиры в таком здании будет как никогда актуальным.

Если взглянуть на типичную трехкомнатную хрущебу, то это не слишком удобная для жизни квартира. Главный минус таких апартаментов заключается в небольшой площади, причем как санузла и ванной, так и кухни, а также комнат.

Кроме того, много нареканий вызывает и угловатость квартиры, которая не позволяет рационально использовать квадратные метры. Вызывают много вопросов и неоправданно длинные коридоры.

Хотя, если учесть общую немаленькую площадь, то трехкомнатная хрущовка легко может быть перепланирована таким образом, чтобы жизнь в ней оказалась максимально комфортной для любой современной семьи.

Проекты перепланировки

Любые удачные проекты перепланировки трехкомнатной хрущевки будут решать одну из имеющихся проблем таких «апартаментов».

Ниже как раз об этих самых проблемах и о том, как можно с ними бороться, и пойдет речь.

Многие хозяева трехкомнатных хрущоб жалуются на слишком маленькую кухню, которая не позволяет разместить даже весь спектр необходимой бытовой техники, не говоря уже о более глобальных задачах.

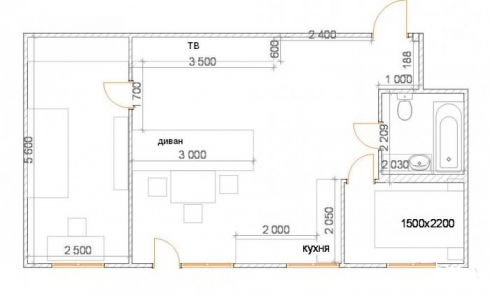
Чертежи и проекты:

Вариант перепланировки хрущевки в панельном доме. До

Вариант перепланировки хрущевки в панельном доме. После

Перепланировка трехкомнатной хрущевки. До-После.

На самом деле увеличить кухню в трехкомнатной хрущовке не так уж и сложно. Более того, эту задачу решить можно несколькими различными способами.

Так, например, если в вашей квартире имеется раздельный санузел, то можно объединить его, ликвидировав ненужную перегородку.

Часть же пространства бывшего санузла как раз и можно будет использовать для расширения кухни. Перенос стены, необходимый в таком случае, профессиональным работником обычно выполняется без труда.

По итогу таких работ кухонное пространство прибавит пару метров, чего будет вполне достаточно для того, чтобы расположить здесь всю бытовую технику, а также мебель для семейных обедов.

Фото перепланировок:

Варианты перепланировки хрущевки.Гостинная

Перепланировка хрущевки. Интерьер

Перепланировка трехкомнатной хрущевки.

Если описанный выше вариант увеличения площади кухни по каким-то причинам вас не устраивает, то можно использовать другой.

Однако, в таком случае вам придется принести в угоду просторной кухни одну из комнат квартиры, которая является смежной с кухонным помещениям.

Для небольшой семьи, которая живет в трехкомнатной квартире, такая потеря будет не слишком ощутимой.

Что же касается того, что вы получите в итоге, то это фактически квартира-студия, где кухня, совмещенная с одной из комнат, дает достаточно пространства для того, чтобы разместить большой стол и часто принимать гостей.

Кстати, в наше время этот вариант перепланировки используется довольно часто.

Если вы не хотите полностью соединять кухню с комнатой, то можно просто перенести стену смежной комнаты, немного уменьшив площадь жилого помещения и, соответственно – увеличив площадь кухни.

Обычно такого рода работы по перепланировке проходят довольно легко.

Еще одной проблемой, с которой сталкиваются владельцы трехкомнатных хрущовок – небольшая площадь санузла.

Так, к примеру, раздельный санузел может мешать не только установить в ванной полноценную купель, но и расположить здесь стиральную машину.

Самый простой способ для того, чтобы локализовать эту неприятность заключается в объединении ванной и туалетной комнаты.

Фото:

Вариант перепланировки хрущевки .Гостинная

Перепланировка в трехкомнатной хрущевке

Вариант перепланировки хрущевки. Кухня

А еще из трехкомнатной хрущебы, как показывает практика, можно легко сделать четырехкомнатную квартиру.

Правда в таком случае площадь каждой отдельной комнаты будет довольно скромна, учтите это. Увеличить площадь одной из комнат при таком решении можно за счет присоединения балкона к жилой зоне, если таковой здесь имеется.

Фотографии — до и после

Если вы до сих пор живете в стандартной квартире, то для того, чтобы решиться на перепланировку, достаточно просто внимательно изучить фото перепланировок трехкомнатной хрущевки.

Схемы и чертежи:

Вариант перепланировка трехкомнатной хрущевки в панельном доме

Схема перепланировки 3х комнатной хрущевки. До

Схема перепланировки 3х комнатной хрущевки. После

Панельный или кирпичный дом?

Перепланировка трехкомнатной хрущевки в кирпичном доме происходит довольно просто.

Все дело в том, что в подобных «апартаментах» нет ни одной стены, то есть перегородки вы вправе рушить и возводить абсолютно везде.

Перепланировка трехкомнатной хрущевки в панельном доме намного более сложна. Здесь все стены, к сожалению, считаются несущими.

Перепланировка в двухкомнатную квартиру

Перепланировка трехкомнатной хрущевки в двухкомнатную, как мы уже упоминали выше, возможна и легко выполнила, особенно если «апартаменты» располагаются в кирпичном доме.